Bois - Air & Eau
STORICA K-KP / Ktop
fonctionnalité
-
Chauffage Hydraulique
appareil pour le chauffage d'un réseau hydraulique.
-
Double-combustion
-
Kit Hydraulique
les accessoires hydrauliques sont intégrés dans le cas d'un appareil hydro. L'installation est donc facilitée.
-
Sicuro Top
vase d'expansion ouvert intégré assurant une sécurité au niveau de la température et de la pression du bouilleur.
-
Système vitre propre
classe énergétiqueSTORICA K-KP / Ktop
vidéos
du produit
Puissance nominale:
14.70kW
Puissance nominale air:
6.90
Puissance nominale eau:
7.80kW
Efficacité énergétique saisonnière:
78.00%
Norme:
EN13240
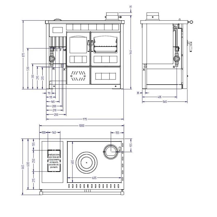
Dimensions LXPXH:
1100x650x910
Dimensions four:
300x390x280
Poids:
350.00kg
Bûches:
43.00cm
NOX:
75.00mg/Nm³
CO:
816.00mg/Nm³
COV:
32.00mg/Nm³
Poussières:
17.30mg/Nm³
Diamètre des sortie des fumées:
150.00mm haute (arrière sur demande à la commande)
Gamme de prix:
€€€ (+ de 4500€ HT)

LE + DE LAUDEVCO
Laissez-vous guider
La vidéo est de plus en plus présente dans nos vies. Afin de s’adapter à ce nouveau mode de transmission de connaissances, LAUDEVCO publie régulièrement des tutos sur sa chaine YouTube à destination de tous les publics (présentation produits, réglages de bases accessibles utilisateurs…). En plus, par le biais de l’espace pro, des « tutos pros » sont disponibles pour nos clients.
